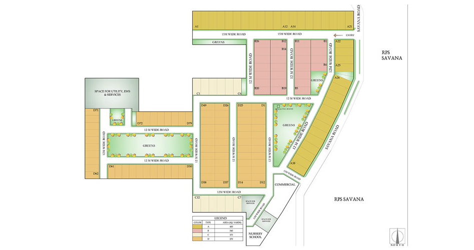
Within the tranquil and extensively developed environs of RPS City rises RPS Palms – a secure and spacious gated complex sprawling in about 20 acres of land housing 456 spacious independent floors built on a variety of plot sizes such as 270, 340, 373, 402, 425 sq. yds.
Each unit of three floors stands on its exclusive grounds complete with front and real lawns. Truly beautiful in look and feel, the floors at RPS Palms offer 3 and 4 bedrooms with toilets, sprawling living room, store/dress room and attached balconies, along with the host of modern amenities. The view of the landscaped grounds is breathtaking. Feast your eyes on lush lawns, neat concrete roads and flowering blooms…or celebrate life on the jogging tracks, swimming pool and gym in the clubs of RPS City.
PROJECT HIGHLIGHTS
Landscaping & Tree Planting
Fire Fighting System
Mini-Theater
Indoor Games
Earthquake Resistant
Meditation Hall
Squash Court
Children's Play Area
Cafeteria
Cricket Pitch
School
Broadband Internet
FLOOR PLAN
Spaces of various dimensions are available at all levels of the Building. The buyers can buy the property that suits their pocket and requirement.